Ruscon Construction

Urban Prestige

Sophisticated city living with sleek lines, high-end finishes, and smart technology integration.

The design features a sophisticated urban aesthetic through the use of mixed façade materials, including glass, brushed steel, dark stones like basalt or granite, and polished concrete. It features clean, sharp lines with simple geometric shapes and an uneven, eye-catching form that enhances visual interest and modernity.

It showcases a clean, open-plan layout that unites the kitchen, dining, and living areas, complemented by floor-to-ceiling windows that provide expansive city views.

Urban Prestige

Sophisticated city living with sleek lines, high-end finishes, and smart technology integration.

The design features a sophisticated urban aesthetic through the use of mixed façade materials, including glass, brushed steel, dark stones like basalt or granite, and polished concrete. It features clean, sharp lines with simple geometric shapes and an uneven, eye-catching form that enhances visual interest and modernity.

It showcases a clean, open-plan layout that unites the kitchen, dining, and living areas, complemented by floor-to-ceiling windows that provide expansive city views.

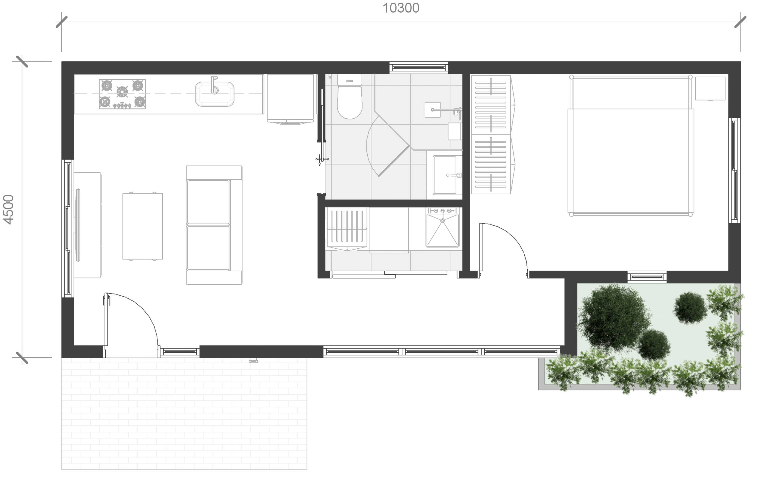
Lexington - Solo

  • Floor Area: 43.54 sq.m.
  • Spaces:
    • Living, Dining, Kitchen Area
    • Bath
    • Laundry & Linen
    • Bed 01

Lexington - Duo

  • Floor Area: 62.67 sq.m.
  • Spaces:
    • Living, Dining, Kitchen Area
    • Bath
    • Laundry
    • Linen
    • Bed 01
    • Bed 02

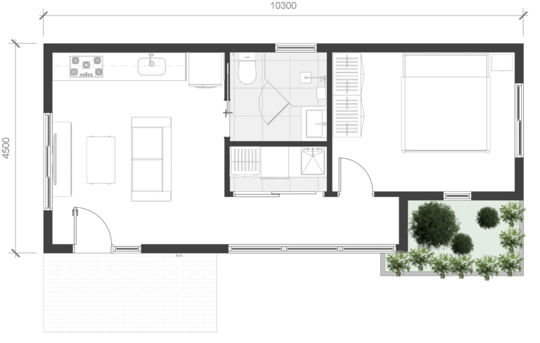
Metropole - Solo

  • Floor Area: 48.80 sq.m.
  • Spaces:
    • Living, Dining, Kitchen Area
    • Bath
    • Laundry & Linen
    • Bed 01

Metropole - Duo

  • Floor Area: 68.58 sq.m.
  • Spaces:
  • Living, Dining, Kitchen Area
  • Bath
  • Laundry
  • Linen
  • Bed 01
  • Bed 02
advanced divider

Exterior Material Finishes

SEE COASTAL ELEGANCE COLLECTION