Ruscon Construction

Coastal Elegance Collection

Inspired by the serenity of the sea, featuring open spaces, natural light, and materials that echo the coastal environment.

The architectural style blends modern coastal and contemporary minimalism, combining clean lines with organic textures and a soft, sun-washed color palette. The overall vibe is light-filled, breezy, and effortlessly luxurious, capturing the essence of relaxed coastal living in harmony with the ocean.

The design emphasizes an open floor plan that promotes natural airflow and visual continuity by minimizing interior barriers. Large sliding or pocket glass doors create a seamless indoor-outdoor connection, while vaulted or coffered ceilings with exposed white beams or rattan inlays add vertical interest and enhance the sense of spaciousness.

Coastal Elegance Collection

Inspired by the serenity of the sea, featuring open spaces, natural light, and materials that echo the coastal environment.

The architectural style blends modern coastal and contemporary minimalism, combining clean lines with organic textures and a soft, sun-washed color palette. The overall vibe is light-filled, breezy, and effortlessly luxurious, capturing the essence of relaxed coastal living in harmony with the ocean.

The design emphasizes an open floor plan that promotes natural airflow and visual continuity by minimizing interior barriers. Large sliding or pocket glass doors create a seamless indoor-outdoor connection, while vaulted or coffered ceilings with exposed white beams or rattan inlays add vertical interest and enhance the sense of spaciousness.

The Seabreeze - Solo

  • Floor Area: 54.18 sq.m.
  • Spaces:
    • Living, Dining, Kitchen Area
    • Bath
    • Laundry
    • Linen
    • Bed 01

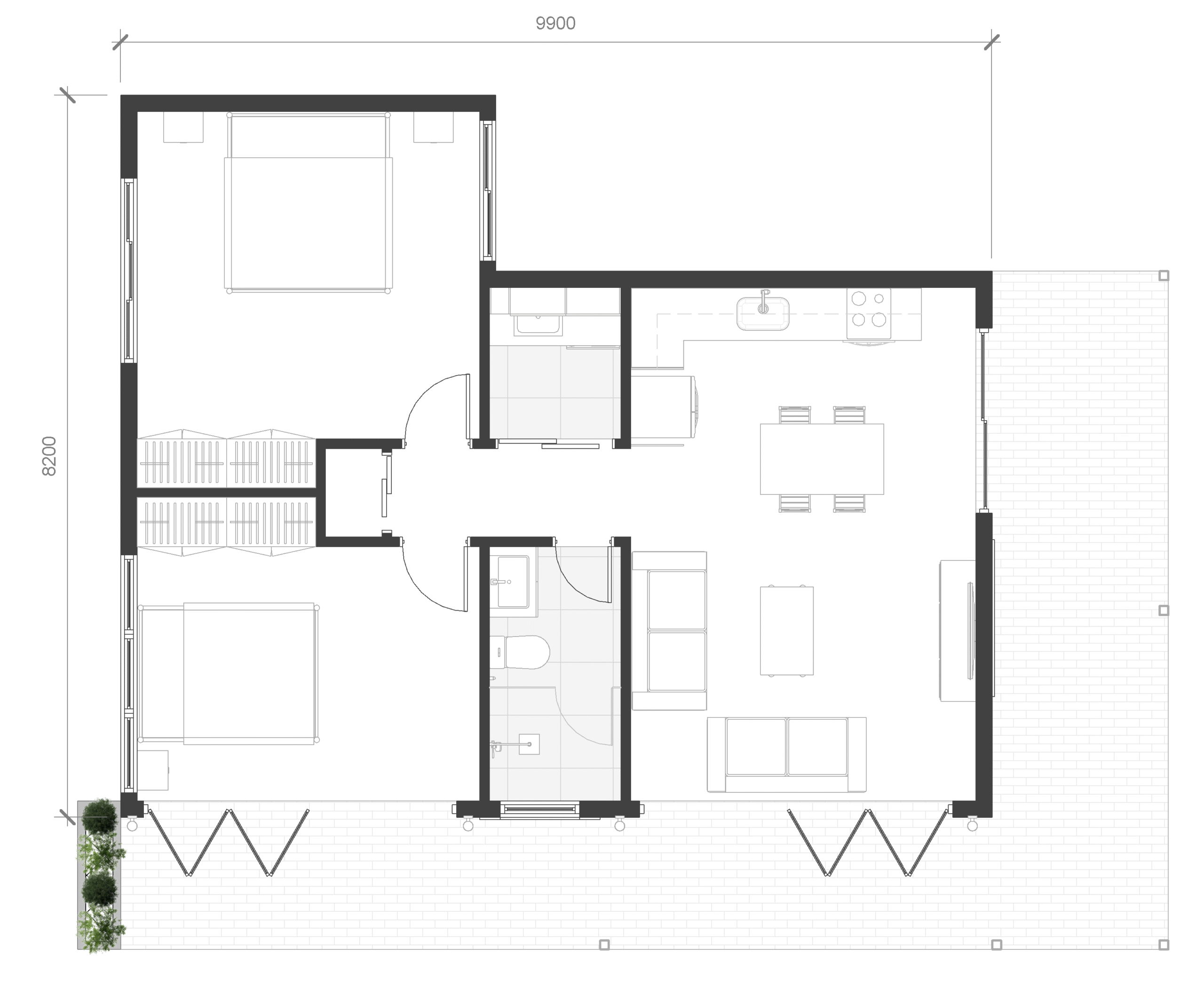
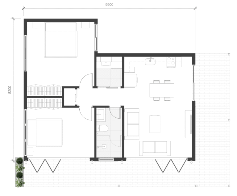
The Seabreeze - Duo

  • Floor Area: 69.90 sq.m.
  • Spaces:
    • Living, Dining, Kitchen Area
    • Bath
    • Laundry & Linen
    • Bed 01
    • Bed 02

The Oceania - Solo

  • Floor Area:  59.63 sq.m.
  • Spaces:
    • Living, Dining, Kitchen Area
    • Bath
    • Laundry
    • Linen
    • Bed 01

The Oceania - Duo

  • Floor Area: 68.40 sq.m.
  • Spaces:
    • Living, Dining, Kitchen Area
    • Bath
    • Laundry 
    • Linen
    • Bed 01
    • Bed 02
advanced divider

Exterior Material Finishes

SEE COUNTRYSIDE LUXE COLLECTION